全套砂石生產線設備可用于硬質石灰石、花崗石、玄武巖、河卵石、冶金渣等多種物料的骨料及人工造砂作業,適用于水電、建材、高速公路、城市建設等行業的應用。本文就針對全套砂石生產線作簡單介紹。
制砂生產線概況
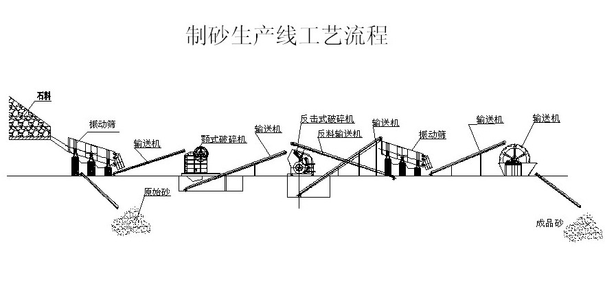
制沙生產線又稱制砂生產線,也就是我們常說的機制砂生產線,這套生產線有振動給料機、顎式破碎機、沖擊式破碎機、振動篩和膠帶傳輸機等設備組臺而成。根據不同的工藝要求:各種型號的制砂生產線設備進行組合,滿足于客戶的不同制砂生產線工藝要求。
點擊咨詢生產線相關問題
制沙生產線特點和優勢
1、制沙生產線投資僅為同等處理能力常規生產線的1/3—1/5。
2、制砂生產線每噸砂石生產成本僅為常規生產線的1/3—1/4。
3、制沙生產線生產自動化程度高,每班生產人員為3人以下。
4、制砂生產線投資回收期短,一般3個月可收回投資。

制沙生產線俯瞰圖
制砂生產線工藝流程圖

制砂生產線工藝流程
紅星制砂生產線
河南紅星礦山機器 生產的全套制砂生產線設備,為您提供全面的技術支持,制砂生產線通常由制沙機、振動篩、輪斗洗砂機、膠帶輸送機、集中電控等設備組成;設計產量一般為50-500噸/小時。我公司歷經數年的開發研究,將具有成熟水準的河卵石制沙機與公司其他系列產品相配套,設計出的全套制砂生產線,在市面上口碑較好。

紅星機器制砂生產線發貨圖
制砂生產線現場圖

制砂生產線客戶現場1

制砂生產線客戶現場2
